- CONTACT: 07811 400862
- info@castillionhomes.co.uk
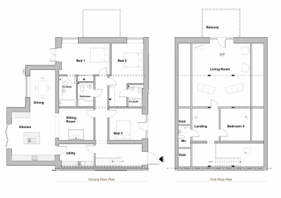
Plot Details
4
3
2
- impressive open plan ground floor kitchen, dining, living room
- fantastic landscaped gardens with pond
- large open plan 1st floor living area leading too:
- balcony with views over Breidden Hills
- double garage
Interested in a plot?
If you are interested in this project or any future projects, please submit your details below and we’ll get back to you.
